 
                                                                🧱 Feiern Sie die ARCHITECTURAL DAYS – mit bis zu 20 % Rabatt auf CADprofi!
Ein Sommer der Möglichkeiten: Die CADProfi ARCHITECTURAL DAYS – sichern Sie sich Ihren Preisvorteil: Bis zu 20 % Rabatt – nur bis 31.07.2025.
Der Sommer ist nicht nur eine Zeit zum Durchatmen – er ist auch die ideale Gelegenheit, bestehende Prozesse zu überdenken und die Arbeitsweise effizienter zu gestalten. Genau deshalb feiern wir in diesem Jahr die ARCHITECTURAL DAYS mit einer besonderen Ferienaktion: Sichern Sie sich jetzt attraktive Rabatte auf CADprofi-Vollversionen und geben Sie Ihren Projekten neue Impulse.
Ob Architekt, Ingenieur, Planungsbüro oder Bauunternehmen – professionelle Werkzeuge sind der Schlüssel zur erfolgreichen Projektentwicklung. Mit der richtigen CAD-Software sparen Sie nicht nur Zeit, sondern gewinnen auch an Planungssicherheit und Komfort im Arbeitsalltag. Und genau hier setzt CADprofi an: mit leistungsstarken Modulen, die Ihre Bauplanung auf das nächste Level heben.
CADprofi Architectural – Ihr Spezialist für Gebäudedesign und Sicherheitspläne
CADprofi Architectural ist weit mehr als nur eine klassische Architektursoftware. Das Modul wurde speziell für die Bedürfnisse von Fachleuten entwickelt, die Gebäude entwerfen, Grundrisse erstellen und dabei höchste Anforderungen an Funktionalität und Präzision stellen. Mit einer Vielzahl an intelligenten Funktionen unterstützt CADprofi Architectural Sie dabei, Ihre Pläne schnell, normgerecht und detailgenau umzusetzen.
Ein besonderes Highlight: Die Möglichkeit zur Erstellung von Evakuierungs- und Rettungsplänen. Diese Funktion spart nicht nur Zeit bei der Umsetzung gesetzlicher Vorgaben, sondern erhöht auch die Sicherheit Ihrer Projekte. Gerade in öffentlichen Gebäuden, Büros oder Industrieanlagen sind solche Pläne unerlässlich – und mit CADprofi Architectural kinderleicht umzusetzen.
Während der ARCHITECTURAL DAYS erhalten Sie beim Kauf einer neuen Vollversion von CADprofi Architectural 10 % Rabatt. Ein klarer Vorteil für alle, die zukunftssicher und professionell arbeiten möchten.
Projektieren ohne Grenzen – mit der CADprofi Suite
Wenn Sie nicht nur im architektonischen Bereich arbeiten, sondern auch regelmäßig mit Haustechnik, Elektroplanung oder Mechanik zu tun haben, ist die CADprofi Suite die perfekte Lösung. Dieses umfassende Softwarepaket vereint alle vier CADprofi-Module in einem System – für maximale Flexibilität und nahtlose Zusammenarbeit zwischen den Gewerken.
Mit der Suite erhalten Sie Zugriff auf:
- CADprofi Architectural für Architektur- und Bauplanung, 
- CADprofi HVAC & Piping für Heizungs-, Lüftungs- und Sanitärsysteme, 
- CADprofi Electrical für Elektroinstallationen und Schaltpläne, 
- CADprofi Mechanical für Maschinenbau und technische Zeichnungen. 
Dank der einheitlichen Benutzeroberfläche und der intelligenten Symbolbibliotheken lässt sich die CADprofi Suite problemlos in bestehende CAD-Umgebungen integrieren – sei es AutoCAD, BricsCAD, GstarCAD oder eine andere Plattform.
Jetzt besonders attraktiv: Beim Kauf einer neuen Vollversion der CADprofi Suite erhalten Sie 20 % Rabatt – aber nur während der ARCHITECTURAL DAYS!
Bitte beachten Sie: Die Rabatte gelten ausschließlich für Vollversionen. Upgrades und Mietlizenzen sind von der Aktion ausgeschlossen.
Jetzt ist der richtige Zeitpunkt: Warum sich der Kauf lohnt
Software-Investitionen zahlen sich dann aus, wenn sie langfristig den Arbeitsalltag erleichtern und gleichzeitig die Produktivität steigern. Genau das bietet CADprofi: Durchdachte Funktionen, automatische Prozesse und eine enorme Zeitersparnis in der täglichen Projektarbeit.
Gerade jetzt, in der Sommerzeit, ist ein idealer Moment, um Arbeitsmittel zu aktualisieren und sich für kommende Projekte optimal aufzustellen. Mit den exklusiven Rabatten der ARCHITECTURAL DAYS sichern Sie sich hochwertige CAD-Software zu einem besonders attraktiven Preis – sofern Sie eine neue Vollversion erwerben.
Ob Sie neue Kundenprojekte effizienter bearbeiten möchten, interne Planungsprozesse optimieren oder Ihre Wettbewerbsfähigkeit steigern wollen – mit CADprofi schaffen Sie die technischen Voraussetzungen dafür.
Nutzen Sie die ARCHITECTURAL DAYS, um Ihre CAD-Lösungen gezielt zu verbessern – mit CADprofi Architectural oder der CADprofi Suite. Beide Lösungen bieten Ihnen leistungsstarke Werkzeuge, die auf die Anforderungen moderner Bauplanung und technischer Zeichnungen zugeschnitten sind.
🎯 10 % Rabatt auf CADprofi Architectural
🎯 20 % Rabatt auf CADprofi Suite
🔒 Nur für neue Vollversionen – keine Rabatte auf Upgrades oder Mietlizenzen
🗓️ Gültig bis zum 31.07.2025
Verpassen Sie nicht diese Chance – investieren Sie in Ihre Effizienz und Zukunft!
CADprofi Vorweihnachtsaktion
Verpassen Sie nicht die CADprofi Vorweihnachtsaktion im CADSHOP von CAD Deutschland - nur jetzt können Sie die Software mit einem Rabatt von 10 % kaufen!
Dies ist eine ausgezeichnete Gelegenheit für Designer, Ingenieure und Architekten, ihre Projekte mit modernen und effektiven CAD-Addons von CADprofi zu bereichern. Die Aktion beinhaltet alle neuen Lizenzen von CADprofi/CP-Symbols und ist gültig vom 12.12. bis zum 22.12.2023.
 
                                                                
CADprofi
wird in 4 professionellen Module angeboten, die die Bedürfnisse jedes Zeichners oder CAD-Anwenders berücksichtigen. Sie haben die Wahl zwischen:
CADprofi Mechanical  - Mechanik, Stahlbau, Apparatebau
CADprofi Architectural - Architektur, Rettungspläne, BKS
CADprofi HVAC & Piping - Haustechnik, Anlagenbau, R&I
CADprofi Electrical - Elektrotechnik, Signalanlagen
oder Sie entscheiden sich für die Suite mit allen Modulen und einem Preisvorteil von 50% gegenüber den Einzelmodulen.
Die CP Symbols werden als Suite oder in den folgenden Paketen angeboten:
|  | 
 |  | CP-Symbols ArchitecturalDiese Serie beinhaltet Standardbibliotheken mit Symbolen und Objekten für Architekturzeichnungen. | 
|  | 
 |  | CP-Symbols ElectricalDiese Serie beinhaltet Standardsymbolbibliotheken für den Einsatz in Projekten der Elektroinstallation. | 
CADprofi Architectural
unterstützt den Anwender sowohl beim Zeichnen der Grundrisse als auch beim Entwerfen der Fassaden, erlaubt das Zeichnen von Wänden, das Einfügen von Türen und Fenstern, Architekturbemaßung und -beschriftungen sowie die Verwendung von Objekten der Innenarchitektur. Eine Besonderheit des Programms ist die Erstellung von Flucht- und Rettungsplänen.
CADprofi Mechanical
Das Programm unterstützt bei der Erstellung von 2D-Projekten in den Bereichen Maschinenbau, Mechanik, Stahlbau und Apparatebau. Das Modul zeichnet sich durch eine sehr umfangreiche Normteilebibliothek aus, die auf nationalen und internationalen Normen basiert. So lassen sich technologische Schemen sowie Schemen für Pneumatik und Hydraulik zeichnen und bearbeiten.
CADprofi HVAC & Piping
Das Programm unterstützt beim Planen von Installationen aller Art, z.B. Haustechnik (Heizung, Lüftung/Klima, Sanitär), Abwasser, Sprinkler, Chemie, Medizin, Labor sowie anderer Gebäude – und Industrieanlagen. Intelligentes Einfügen von Symbolen und Objekten, automatisches Zeichnen von Ansichten, Stücklistenerstellung sowie Bibliotheken bekannter Hersteller sind nur einige Programmvorteile.
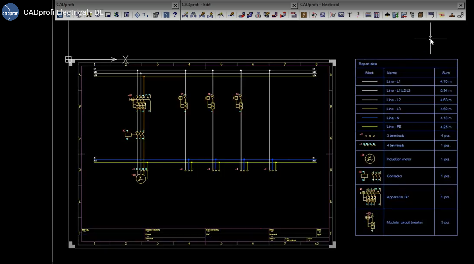
CADprofi Electrical
unterstützt den Anwender beim Zeichnen in den Bereichen Elektrotechnik, Regelung, Steuerung und Automatisierung.
Das Modul für die Projektierung von Elektro-, Steuerungs-, Sprinkler-, Regelungs-, Kommunikations- und ähnlichen Anlagen enthält komplette Symbolbibliotheken für Starkstrom, Schwachstrom und Signalanlagen. Damit lassen sich sowohl Grundrisse als auch Elektroschemen problemlos zeichnen. Umfangreiche Funktionen zum Erleichtern der Projektierung unterstützen den Anwender beim Zeichnen von Kabelkanälen, Leitungen, Verteilerschränken, Leuchten u. Ä.
 
                                                                         
    
                                                                
 
                                                                                                                                                                                                                             
                                                                                                                                                                                                                             
                                                                                                                                                                                                                             
                                                                                                                                                                                                                             
                                                                                                                                                                                                                             
                                                                                                                                                                                                                             
                                                                                                                                                                                                                             
                                                                                                                                                                                                                             
                                                                                                                                                                                                                             
                                                                                                                                                                                                                             
                                                                                                                                                                                                                             
                                                                                                                                                                                                                            